Ventilated façade cassette plan detail dwg file.
Description
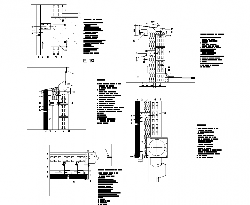
Ventilated façade cassette plan detail dwg file. The plan with detailing of beams, columns, elevations, sections, etc.,
Uploaded by:
Eiz
Luna
Ventilated façade cassette plan detail dwg file. The plan with detailing of beams, columns, elevations, sections, etc.,
Uploaded by:
Luna