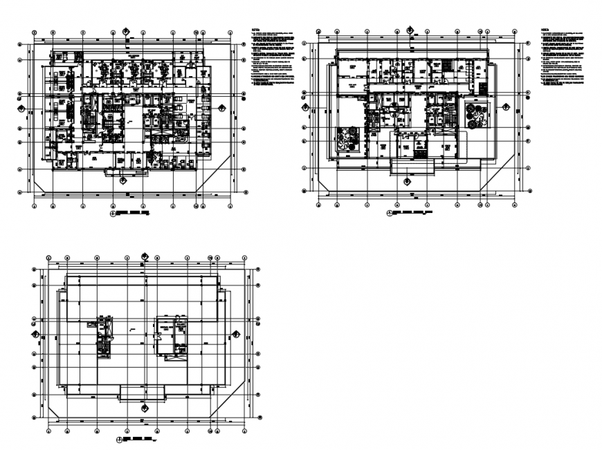
Second floor and doctor pent house plan of hospital cad drawing details dwg file
Description
Second floor and doctor pent house plan of hospital cad drawing details that includes a detailed view of lecture room, nurse station, library, praying room, office, management department, offices, lifts, corridor, food receiving, equipment room, storage, operating room, staf lounge and much more of hospital plan.
Uploaded by:
Eiz
Luna
