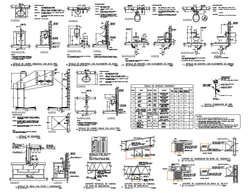
Sanitary Ware Detail Block
Description
Detail Urinal Flow Meter Pedal, Cold Water Vertical Sink Detail, Detail Of Toilet With Handle Flushetc Detail.sanitart ware Design.
File Type:
Autocad
File Size:
457 KB
Category::
Dwg Cad Blocks
Sub Category::
Sanitary Ware Cad Block
type:
Gold
Uploaded by:
Priyanka
Patel
