Chinese archway in dwg file.
Description
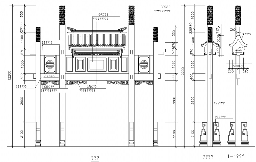
Chinese archway in dwg file. different types of Chinese arch way , section and plan view details, joinery details, unique carving , with dimensions and other details.
Uploaded by:
Eiz
Luna
Chinese archway in dwg file. different types of Chinese arch way , section and plan view details, joinery details, unique carving , with dimensions and other details.
Uploaded by:
Luna