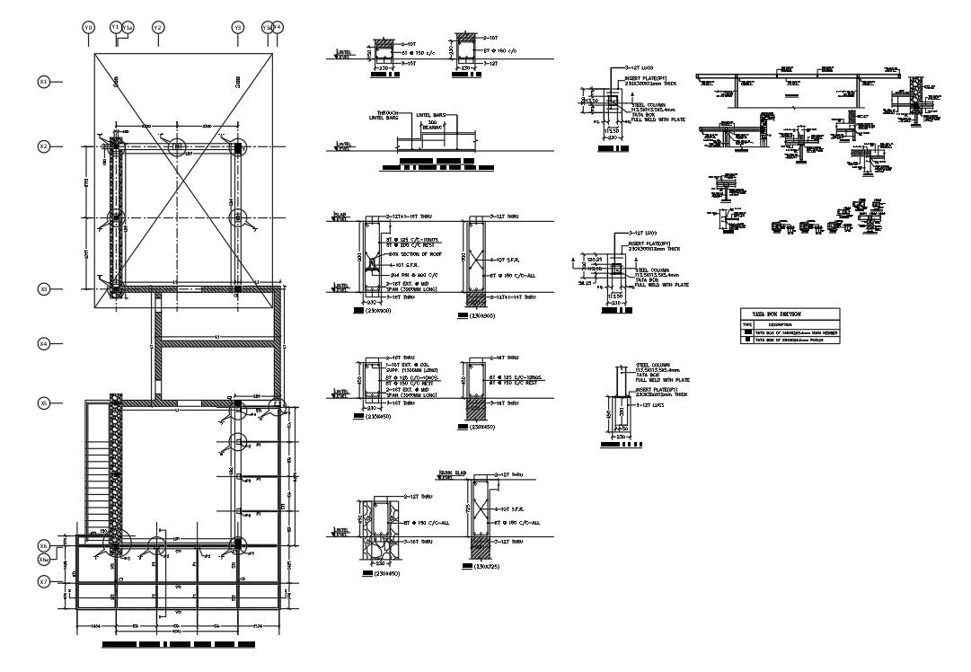
Ground floor Structure details

Ground floor Structure details
Profile

Uploaded by:

Mehul

Patel

Description
Ground floor Structure details in a steel beam details, foundation details , insert plate , section roof plan, steel column details, This file draw in autocad format.
Profile

Uploaded by:

Mehul

Patel

find Latest

Related Files

WhatsApp Chat