LOGIN
HOME
CATEGORIES
UPLOAD FILE
PRICING
HOUSE PLAN
ABOUT US
CONTACT US
AutoCad house plan DWG file
Home
Categories
Architecture
Bungalow House Design
AutoCad house plan DWG file
Uploaded by:
Poonam
View Profile
View Profile
Description
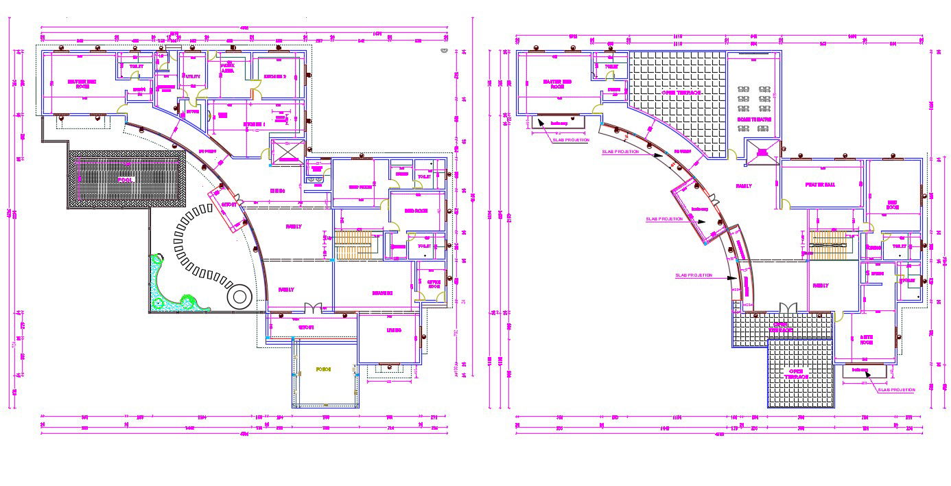
Bungalow autocad plan which includes bedroom, kitchen, dinning hall, living room, bath room, kitchen, balcony on the upper floor. Parking area along with garden and swimming pool.
File Type:
DWG
File Size:
1.2 MB
Category::
Architecture
Sub Category::
Bungalow House Design
type:
Gold
Uploaded by:
Poonam
View Profile
Download
Add to libary
find Latest
Related
Files