LOGIN
HOME
CATEGORIES
UPLOAD FILE
PRICING
HOUSE PLAN
ABOUT US
CONTACT US
Production Building Plan DWG File
Home
Categories
Architecture
Industrial Plant
Production Building Plan DWG File
Uploaded by:
Komal
View Profile
View Profile
Description
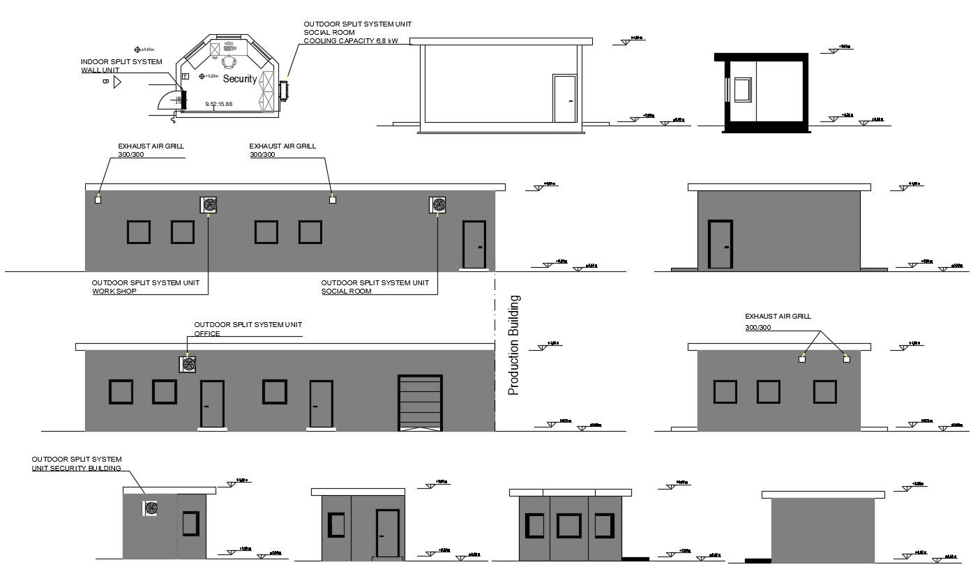
Production Building Plan DWG File includes elevation design with a view of indoor and outdoor split system unit social room cooling capacity and exhaust air gril.
File Type:
DWG
File Size:
232 KB
Category::
Architecture
Sub Category::
Industrial Plant
type:
Gold
Uploaded by:
Komal
View Profile
Download
Add to libary
find Latest
Related
Files