LOGIN
HOME
CATEGORIES
UPLOAD FILE
PRICING
HOUSE PLAN
ABOUT US
CONTACT US
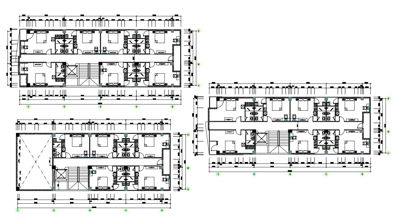
Hotel Bedroom Plan
Home
Categories
Architecture
Hotels and Restaurants
Hotel Bedroom Plan
Uploaded by:
Komal
View Profile
View Profile
Description
the architecture layout plan of Hotel Bedroom AutoCAD drawing; includes bedrooms with furniture and dimension details.
File Type:
DWG
File Size:
2.2 MB
Category::
Architecture
Sub Category::
Hotels and Restaurants
type:
Gold
Uploaded by:
Komal
View Profile
Download
Add to libary
find Latest
Related
Files