LOGIN
HOME
CATEGORIES
UPLOAD FILE
PRICING
HOUSE PLAN
ABOUT US
CONTACT US
Office Building Plans DWG File
Home
Categories
Architecture
Corporate Building
Office Building Plans DWG File
Uploaded by:
Komal
View Profile
View Profile
Description
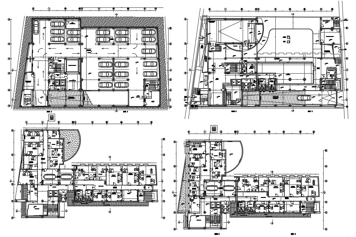
Office Building Plans DWG File; the architecture layout plan of basement parking floor plan, workstation office floor plan with furniture details.
File Type:
DWG
File Size:
3.8 MB
Category::
Architecture
Sub Category::
Corporate Building
type:
Gold
Uploaded by:
Komal
View Profile
Download
Add to libary
find Latest
Related
Files