Public Toilet Design CAD Plan

Public Toilet Design CAD Plan
Profile

Uploaded by:

Jiya

Description
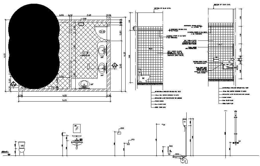
Public toilet design CAD layout plan that shows work plan drawing of the sanitary toilet along with sanitary blocks details and sectional details of toilet area also shown in the drawing.
Profile

Uploaded by:

Jiya

find Latest

Related Files

WhatsApp Chat