LOGIN
HOME
CATEGORIES
UPLOAD FILE
PRICING
HOUSE PLAN
ABOUT US
CONTACT US
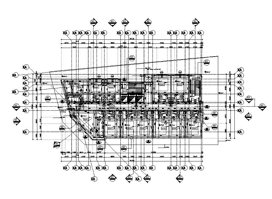
Commerce Building CAD Plan Download
Home
Categories
Architecture
Corporate Building
Commerce Building CAD Plan Download
Uploaded by:
Jiya
View Profile
View Profile
Description
Drawing details of Commerce building floor plan that shows work floor plan drawing details of building along with ramp details and dimension hidden line details.
File Type:
DWG
File Size:
2.3 MB
Category::
Architecture
Sub Category::
Corporate Building
type:
Gold
Uploaded by:
Jiya
View Profile
Download
Add to libary
find Latest
Related
Files