LOGIN
HOME
CATEGORIES
UPLOAD FILE
PRICING
HOUSE PLAN
ABOUT US
CONTACT US
Kitchen Project
Home
Categories
Interior Design
Kitchen Interiors
Kitchen Project
Uploaded by:
Albert
stroy
View Profile
View Profile
Description
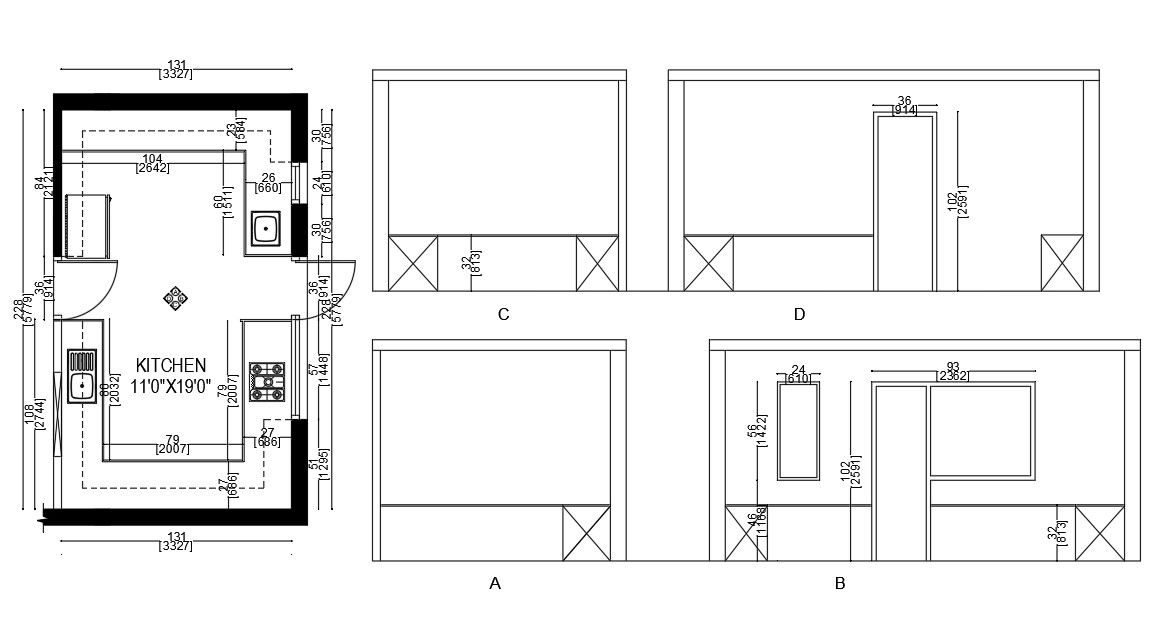
Layout plan of kitchen, section plan and all side elevation design with much more detailing about interior design of kitchen.Kitchen Project.
File Type:
3d max
File Size:
57 KB
Category::
Interior Design
Sub Category::
Kitchen Interiors
type:
Gold
Uploaded by:
Albert
stroy
View Profile
Download
Add to libary
find Latest
Related
Files