LOGIN
HOME
CATEGORIES
UPLOAD FILE
PRICING
HOUSE PLAN
ABOUT US
CONTACT US
Hotel Design CAD Drawings
Home
Categories
Architecture
Hotels and Restaurants
Hotel Design CAD Drawings
Uploaded by:
Jiya
View Profile
View Profile
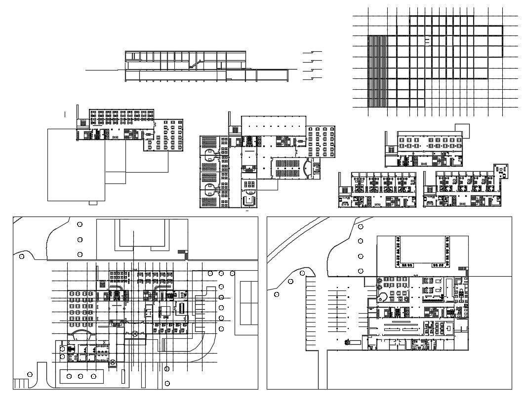
Description
CAD design floor plan of the hotel which also includes details of the restaurant area, kitchen area, dining area, parking area details, boundary wall details, etc.
File Type:
DWG
File Size:
2.2 MB
Category::
Architecture
Sub Category::
Hotels and Restaurants
type:
Gold
Uploaded by:
Jiya
View Profile
Download
Add to libary
find Latest
Related
Files