LOGIN
HOME
CATEGORIES
UPLOAD FILE
PRICING
HOUSE PLAN
ABOUT US
CONTACT US
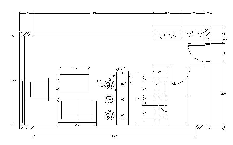
Free Bar Room Plan DWG File
Home
Categories
Architecture
Hotels and Restaurants
Free Bar Room Plan DWG File
Uploaded by:
Komal
View Profile
View Profile
Description
Free Bar Room Plan DWG File; top view layout plan includes wall detail and furniture plan dimension details. download free AutoCAD file and get more details about the bar room plan
File Type:
DWG
File Size:
76 KB
Category::
Architecture
Sub Category::
Hotels and Restaurants
type:
Free
Uploaded by:
Komal
View Profile
Download
Add to libary
find Latest
Related
Files