LOGIN
HOME
CATEGORIES
UPLOAD FILE
PRICING
HOUSE PLAN
ABOUT US
CONTACT US
Column RCC Structure
Home
Categories
Construction
Column Details
Column RCC Structure
Uploaded by:
Jiya
View Profile
View Profile
Description
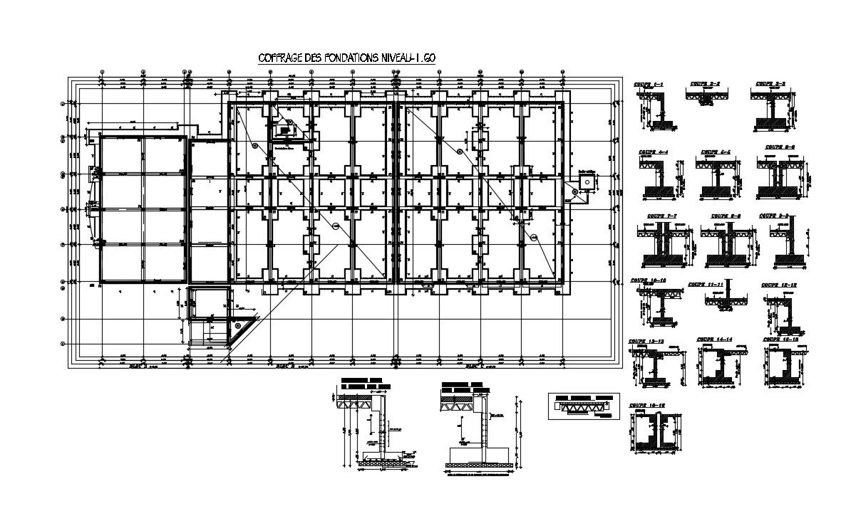
CAD drawing details of column and beam structure which shows the column installation plan details along with column footing details and beam structure design details.
File Type:
DWG
File Size:
2.3 MB
Category::
Construction
Sub Category::
Column Details
type:
Gold
Uploaded by:
Jiya
View Profile
Download
Add to libary
find Latest
Related
Files