LOGIN
HOME
CATEGORIES
UPLOAD FILE
PRICING
HOUSE PLAN
ABOUT US
CONTACT US
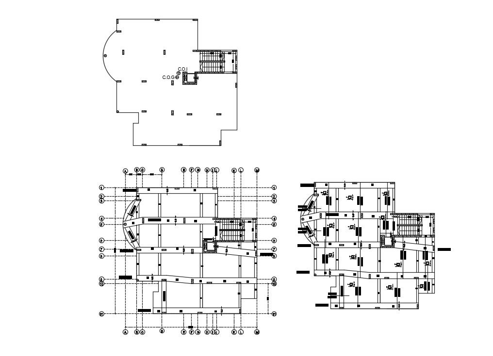
Beam Column Layout Plan
Home
Categories
Structure
Beam And Lintel
Beam Column Layout Plan
Uploaded by:
Jiya
View Profile
View Profile
Description
CAD design of beam layout plan which shows the beam and column design details along with beam span details and dimension hidden line detailing Drawing which can be downloaded for free.
File Type:
DWG
File Size:
656 KB
Category::
Structure
Sub Category::
Beam And Lintel
type:
Free
Uploaded by:
Jiya
View Profile
Download
Add to libary
find Latest
Related
Files