LOGIN
HOME
CATEGORIES
UPLOAD FILE
PRICING
HOUSE PLAN
ABOUT US
CONTACT US
Steel Column Design CAD File
Home
Categories
Construction
Column Details
Steel Column Design CAD File
Uploaded by:
Jiya
View Profile
View Profile
Description
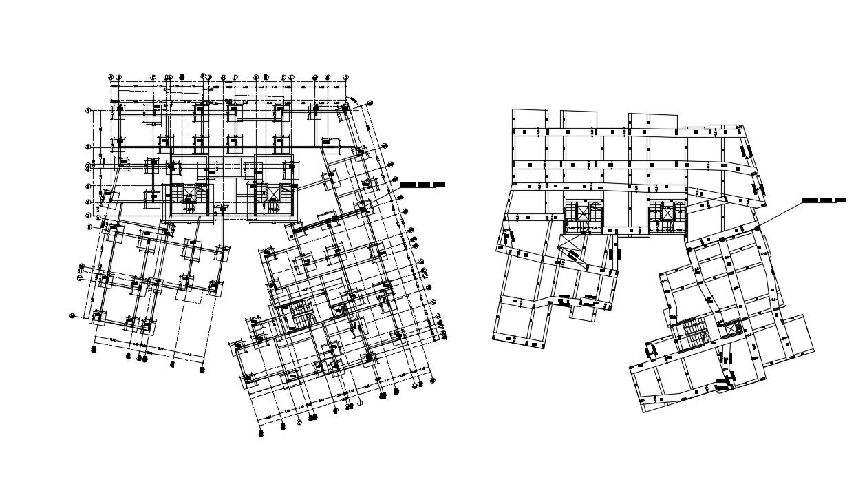
Design of column footing det6aqils and beam plan which shows the column and beam spacing plan along with footing construction details.
File Type:
DWG
File Size:
1 MB
Category::
Construction
Sub Category::
Column Details
type:
Gold
Uploaded by:
Jiya
View Profile
Download
Add to libary
find Latest
Related
Files