LOGIN
HOME
CATEGORIES
UPLOAD FILE
PRICING
HOUSE PLAN
ABOUT US
CONTACT US
Simple House Design CAD File
Home
Categories
Architecture
Bungalow House Design
Simple House Design CAD File
Uploaded by:
Rashmi
Solanki
View Profile
View Profile
Description
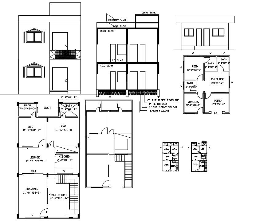
Simple House Design CAD File ; House design with all floor detail ground floor ,first floor ,terrace plan ,elevations ,section and rooms texting download .
File Type:
DWG
File Size:
164 KB
Category::
Architecture
Sub Category::
Bungalow House Design
type:
Gold
Uploaded by:
Rashmi
Solanki
View Profile
Download
Add to libary
find Latest
Related
Files