LOGIN
HOME
CATEGORIES
UPLOAD FILE
PRICING
HOUSE PLAN
ABOUT US
CONTACT US
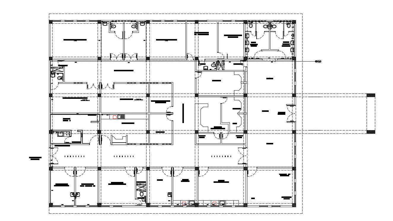
Commercial Building Floor Plans Free Download
Home
Categories
Architecture
Corporate Building
Commercial Building Floor Plans Free Download
Uploaded by:
Komal
View Profile
View Profile
Description
Commercial Building Floor Plans Free Download; 2d CAD drawing of architecture floor plan with description detail.
File Type:
DWG
File Size:
667 KB
Category::
Architecture
Sub Category::
Corporate Building
type:
Free
Uploaded by:
Komal
View Profile
Download
Add to libary
find Latest
Related
Files