Small shop floor plan with interior layout and design in DWG File
Description
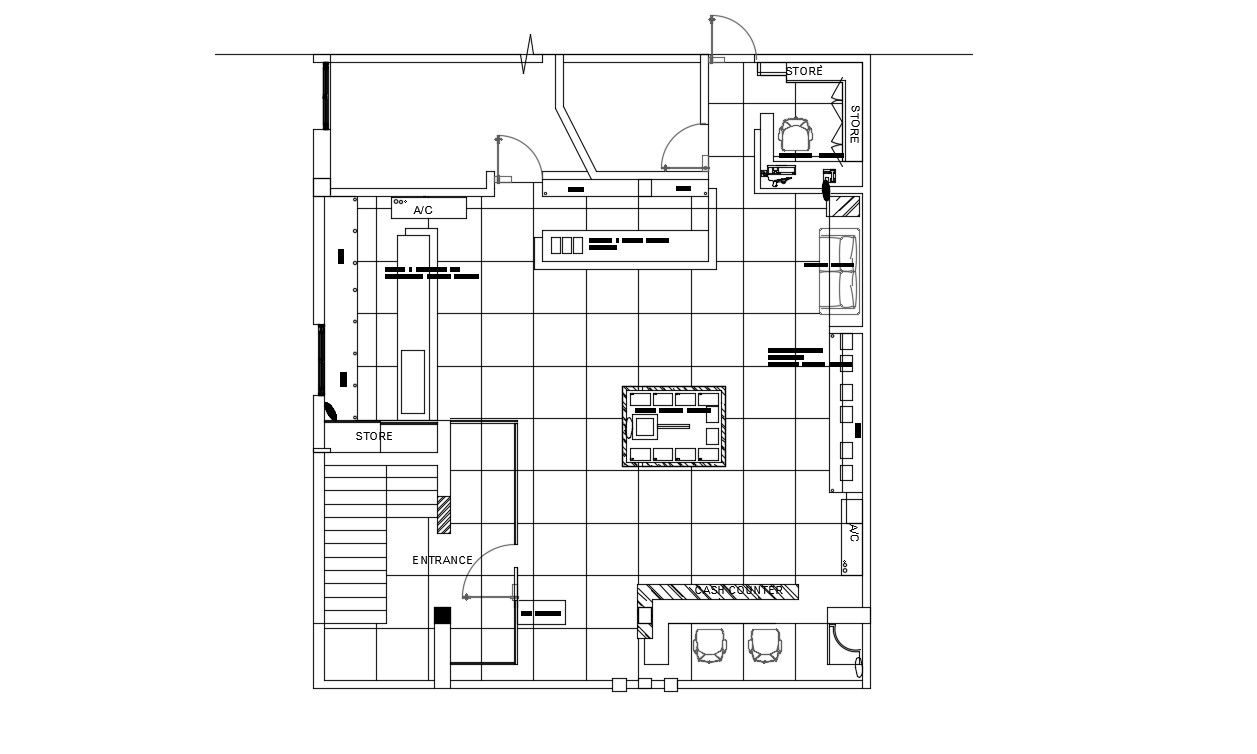
Discover a detailed small shop design plan in this AutoCAD File, featuring comprehensive floor layouts, furniture placement, and functional zones. This drawing enables architects, interior designers, and engineers to efficiently plan interiors, optimize space usage, and ensure practical workflow. The plan includes circulation paths, display arrangements, and structural details, supporting professional execution. Ideal for modern commercial spaces, it combines aesthetics, usability, and accurate planning for effective shop design.
File Type:
DWG
File Size:
502 KB
Category::
Interior Design
Sub Category::
Showroom & Shop Interior
type:
Free

Uploaded by:
akansha
ghatge

