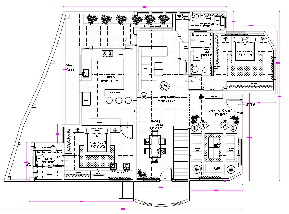
Furnished Bungalow Layout Plan CAD File
Description
Furnished Bungalow Layout Plan CAD File; the architecture bungalow furniture layout plan includes 2 master bedrooms, modular kitchen, dining area, living room, drawing room and common toilet with all furniture detail and dimension detail in AutoCAD format. download DWG file of architecture bungalow plan and collect the fabulous idea for your CAD preference.
Uploaded by:

