LOGIN
HOME
CATEGORIES
UPLOAD FILE
PRICING
HOUSE PLAN
ABOUT US
CONTACT US
Apartment Section Elevation CAD Drawing
Home
Categories
Architecture
Apartment Drawing
Apartment Section Elevation CAD Drawing
Uploaded by:
Komal
View Profile
View Profile
Description
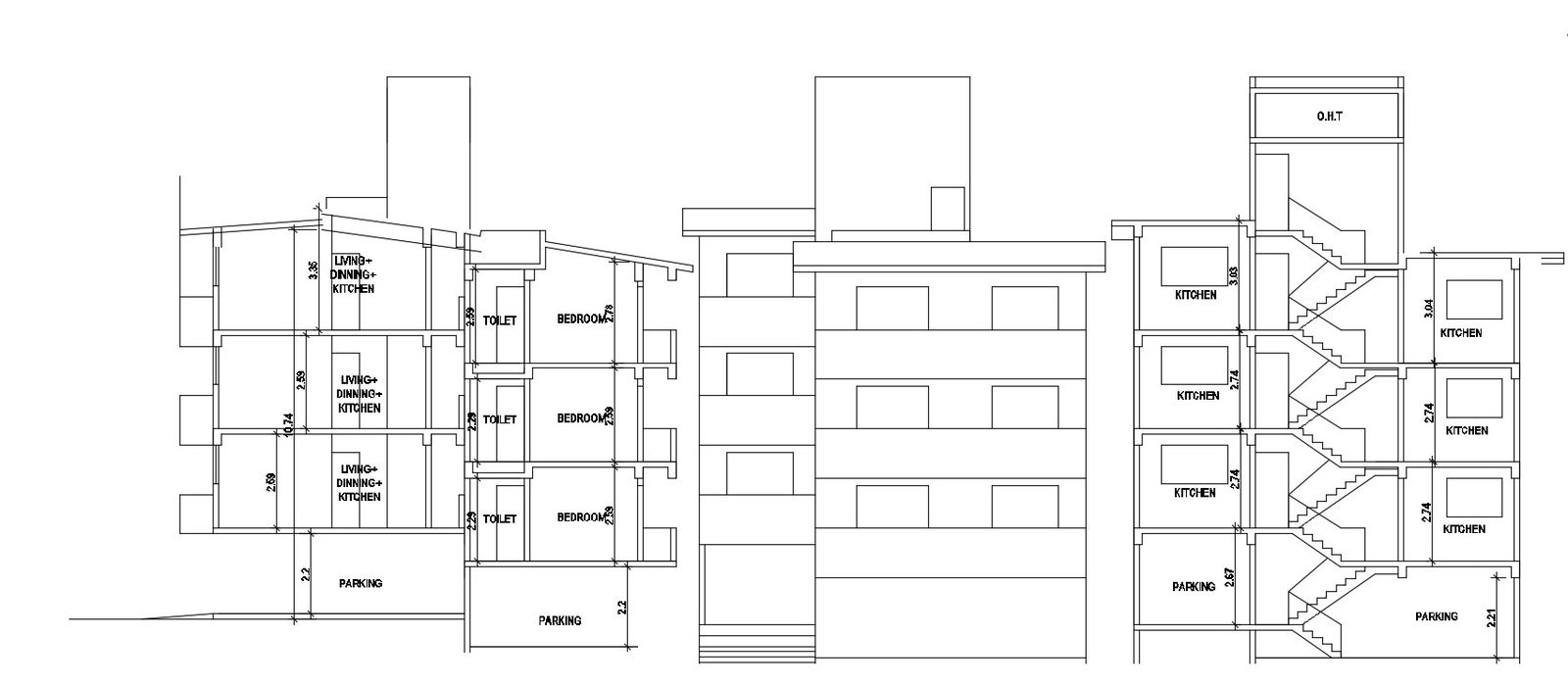
Apartment Section Elevation CAD Drawing; 2d CAD drawing of apartment 3 storey structure building section and elevation design with all dimension detail.
File Type:
DWG
File Size:
70 KB
Category::
Architecture
Sub Category::
Apartment Drawing
type:
Free
Uploaded by:
Komal
View Profile
Download
Add to libary
find Latest
Related
Files