Home wiring Plan AutoCAD drawing
Description
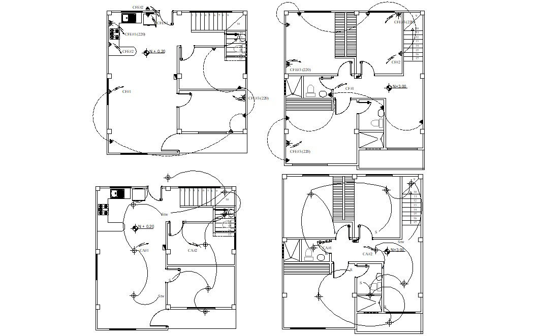
Residential bungalow design electrical wiring plan that shows fuse circuits wiring details in the house along with switch panel board details download AutoCAD drawing.

Uploaded by:
akansha
ghatge

Uploaded by:
ghatge