LOGIN
HOME
CATEGORIES
UPLOAD FILE
PRICING
HOUSE PLAN
ABOUT US
CONTACT US
Shop Building Plan DWG File
Home
Categories
Architecture
Corporate Building
Shop Building Plan DWG File
Uploaded by:
Komal
View Profile
View Profile
Description
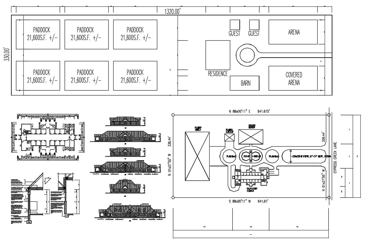
Shop Building Plan DWG File; download DWG file of shop building floor plan, plot area, wall section, and all side elevation design with dimension and description detail.
File Type:
DWG
File Size:
1017 KB
Category::
Architecture
Sub Category::
Corporate Building
type:
Gold
Uploaded by:
Komal
View Profile
Download
Add to libary
find Latest
Related
Files