House Porch Design AutoCAD File

House Porch Design AutoCAD File
Profile

Uploaded by:

Komal

Description
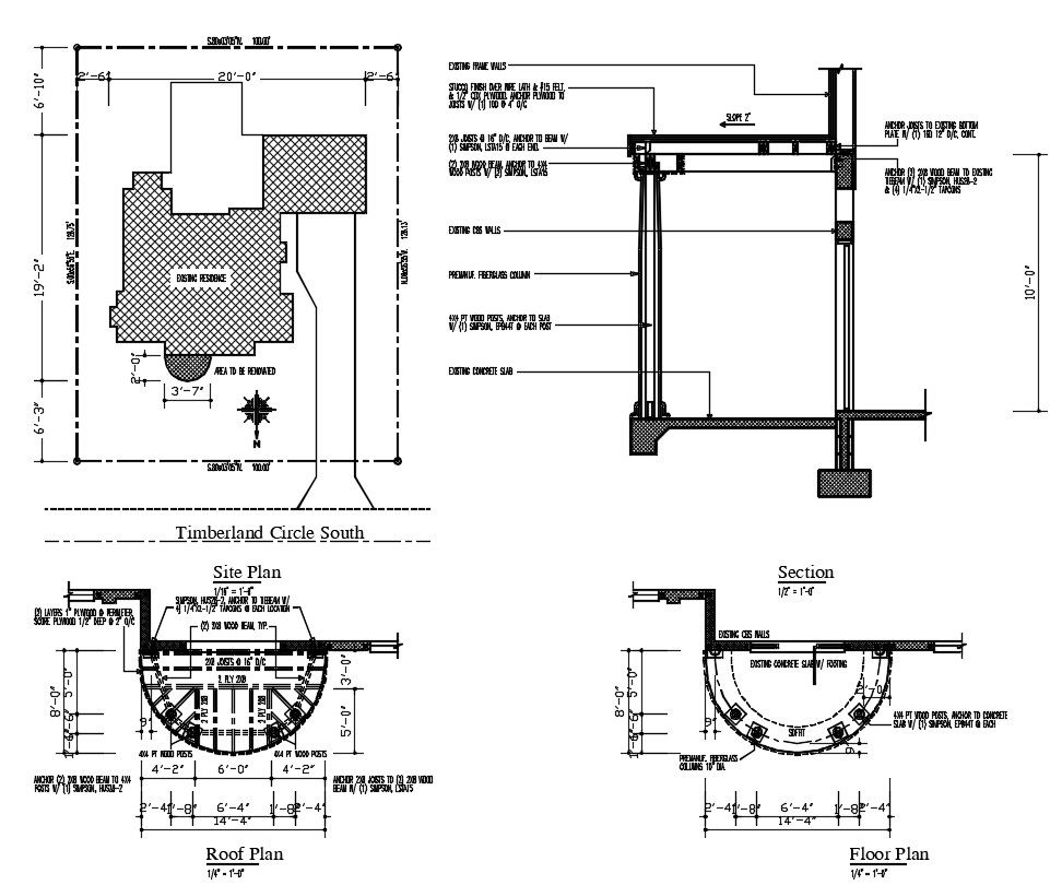
House Porch Design AutoCAD File; download free AutoCAD file of house front proch design CAD drawing includes roof plan floor plan and column plan with description and dimension details.
Profile

Uploaded by:

Komal

find Latest

Related Files

WhatsApp Chat