LOGIN
HOME
CATEGORIES
UPLOAD FILE
PRICING
HOUSE PLAN
ABOUT US
CONTACT US
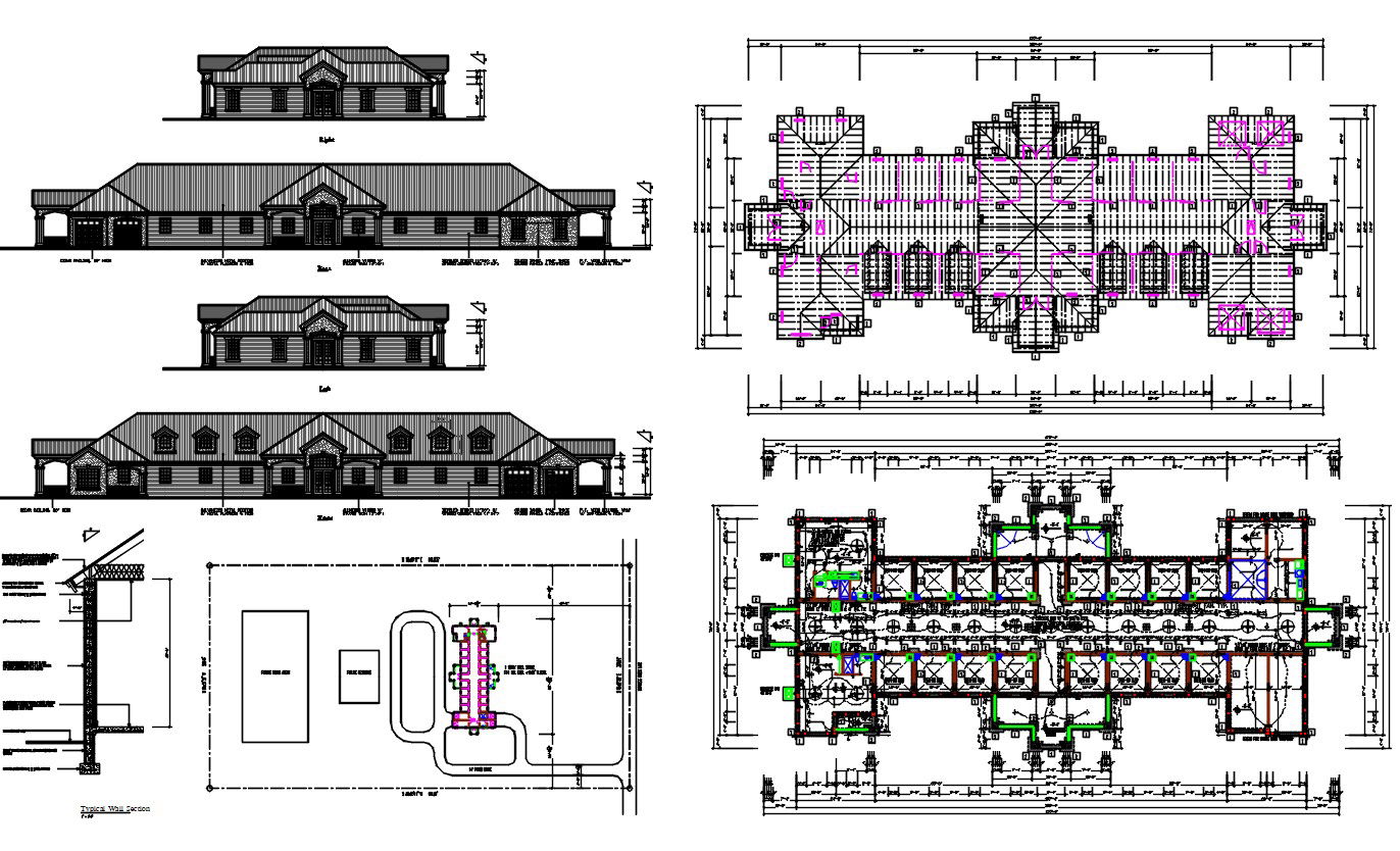
Shopping Complex AutoCAD Drawing
Home
Categories
Architecture
Corporate Building
Shopping Complex AutoCAD Drawing
Uploaded by:
Komal
View Profile
View Profile
Description
Shopping Complex AutoCAD Drawing; 2d CAD drawing of shopping complex ground floor plan, electrical plan, roof plan and elevation design with dimension details.
File Type:
DWG
File Size:
1.2 MB
Category::
Architecture
Sub Category::
Corporate Building
type:
Gold
Uploaded by:
Komal
View Profile
Download
Add to libary
find Latest
Related
Files