LOGIN
HOME
CATEGORIES
UPLOAD FILE
PRICING
HOUSE PLAN
ABOUT US
CONTACT US
Commercial Building CAD Drawing
Home
Categories
Architecture
Corporate Building
Commercial Building CAD Drawing
Uploaded by:
Poonam
View Profile
View Profile
Description
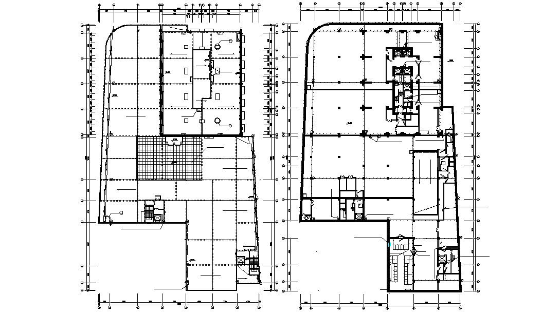
The commercial building plan shows the details of the shops and many more. Also given the center line plan and dimension details.
File Type:
DWG
File Size:
1.1 MB
Category::
Architecture
Sub Category::
Corporate Building
type:
Gold
Uploaded by:
Poonam
View Profile
Download
Add to libary
find Latest
Related
Files