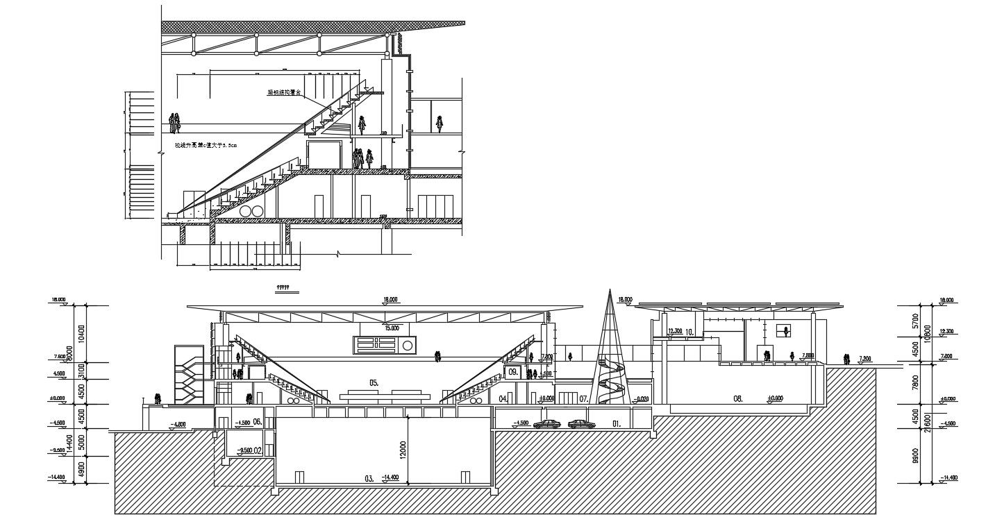
Auditorium Building Section CAD Drawing

Auditorium Building Section CAD Drawing
Profile

Uploaded by:

Komal

Description
Auditorium Building Section CAD Drawing; the auditorium building cross-section CAD drawing includes seating arrangement and building structure detail in AutoCAD software file.
Profile

Uploaded by:

Komal

find Latest

Related Files