Commercial Building Design Architecture Plan

Commercial Building Design Architecture Plan
Profile

Uploaded by:

akansha

ghatge

Description
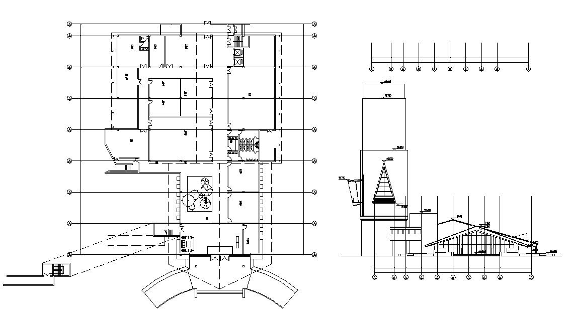
Commercial building design layout plan along with dimension working set, centerline design, building front elevation, and various other works details download a CAD file for the detailed presented work plan.
Profile

Uploaded by:

akansha

ghatge

find Latest

Related Files

WhatsApp Chat