LOGIN
HOME
CATEGORIES
UPLOAD FILE
PRICING
HOUSE PLAN
ABOUT US
CONTACT US
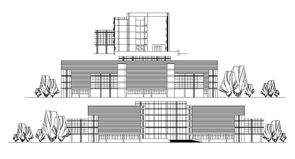
Download Commerce Building Elevation CAD File
Home
Categories
Architecture
Corporate Building
Download Commerce Building Elevation CAD File
Uploaded by:
akansha
ghatge
View Profile
View Profile
Description
2d CAD drawing of commercial building front elevation and side elevation design along with landscaping details download file for free.
File Type:
DWG
File Size:
80 KB
Category::
Architecture
Sub Category::
Corporate Building
type:
Free
Uploaded by:
akansha
ghatge
View Profile
Download
Add to libary
find Latest
Related
Files