LOGIN
HOME
CATEGORIES
UPLOAD FILE
PRICING
HOUSE PLAN
ABOUT US
CONTACT US
Column Plan AutoCAD Drawing Download
Home
Categories
Construction
Column Details
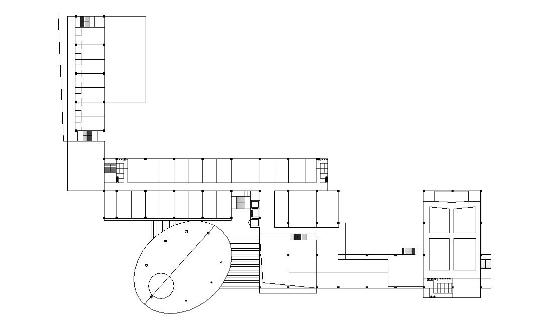
Column Plan AutoCAD Drawing Download
Uploaded by:
akansha
ghatge
View Profile
View Profile
Description
CAD drawing details of building column design plan download file for free.
File Type:
DWG
File Size:
70 KB
Category::
Construction
Sub Category::
Column Details
type:
Free
Uploaded by:
akansha
ghatge
View Profile
Download
Add to libary
find Latest
Related
Files