LOGIN
HOME
CATEGORIES
UPLOAD FILE
PRICING
HOUSE PLAN
ABOUT US
CONTACT US
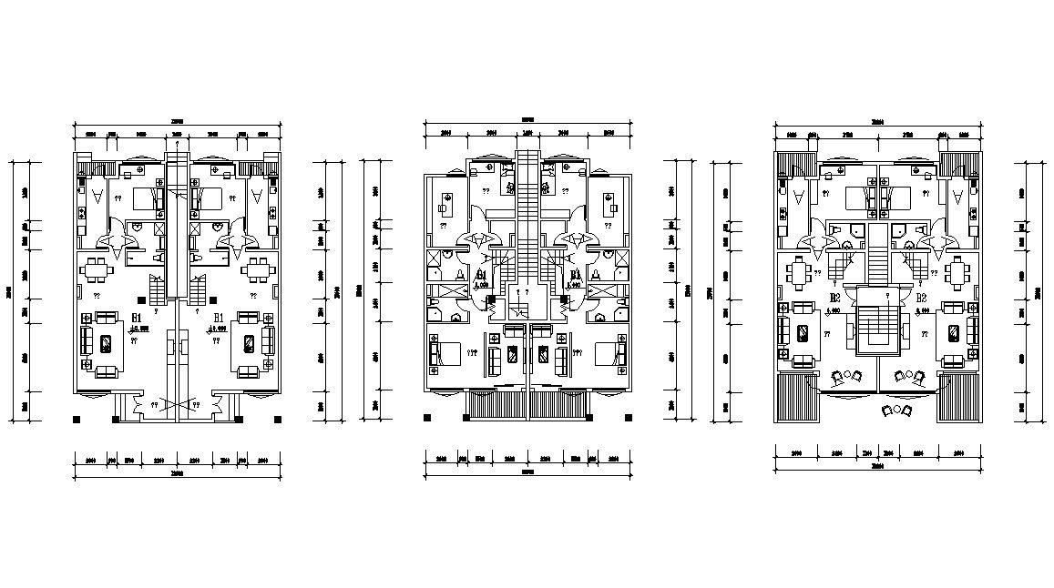
Modern House CAD Plan
Home
Categories
Architecture
House Plan
Modern House CAD Plan
Uploaded by:
Poonam
View Profile
View Profile
Description
House CAD plan includes the details of the fully furnished bedroom along with the bathroom, kitchen, living hall, dining room, and many more. Also given the dimension details.
File Type:
DWG
File Size:
267 KB
Category::
Architecture
Sub Category::
House Plan
type:
Gold
Uploaded by:
Poonam
View Profile
Download
Add to libary
find Latest
Related
Files