LOGIN
HOME
CATEGORIES
UPLOAD FILE
PRICING
HOUSE PLAN
ABOUT US
CONTACT US
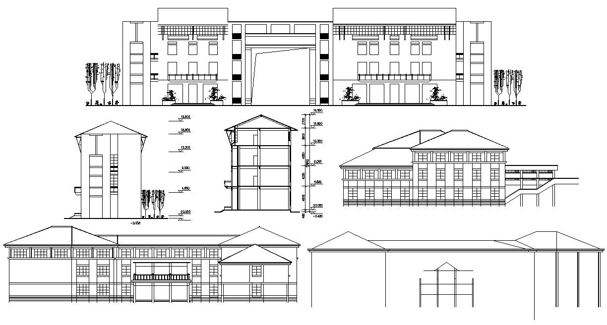
Building Facade and Section CAD Drawing
Home
Categories
Architecture
Corporate Building
Building Facade and Section CAD Drawing
Uploaded by:
akansha
ghatge
View Profile
View Profile
Description
2d CAD drawing details of multi-story commercial building front elevation, side elevation, and section design AutoCAD file download for free.
File Type:
DWG
File Size:
328 KB
Category::
Architecture
Sub Category::
Corporate Building
type:
Free
Uploaded by:
akansha
ghatge
View Profile
Download
Add to libary
find Latest
Related
Files