Sport Center Section Design AutoCAD File
Description
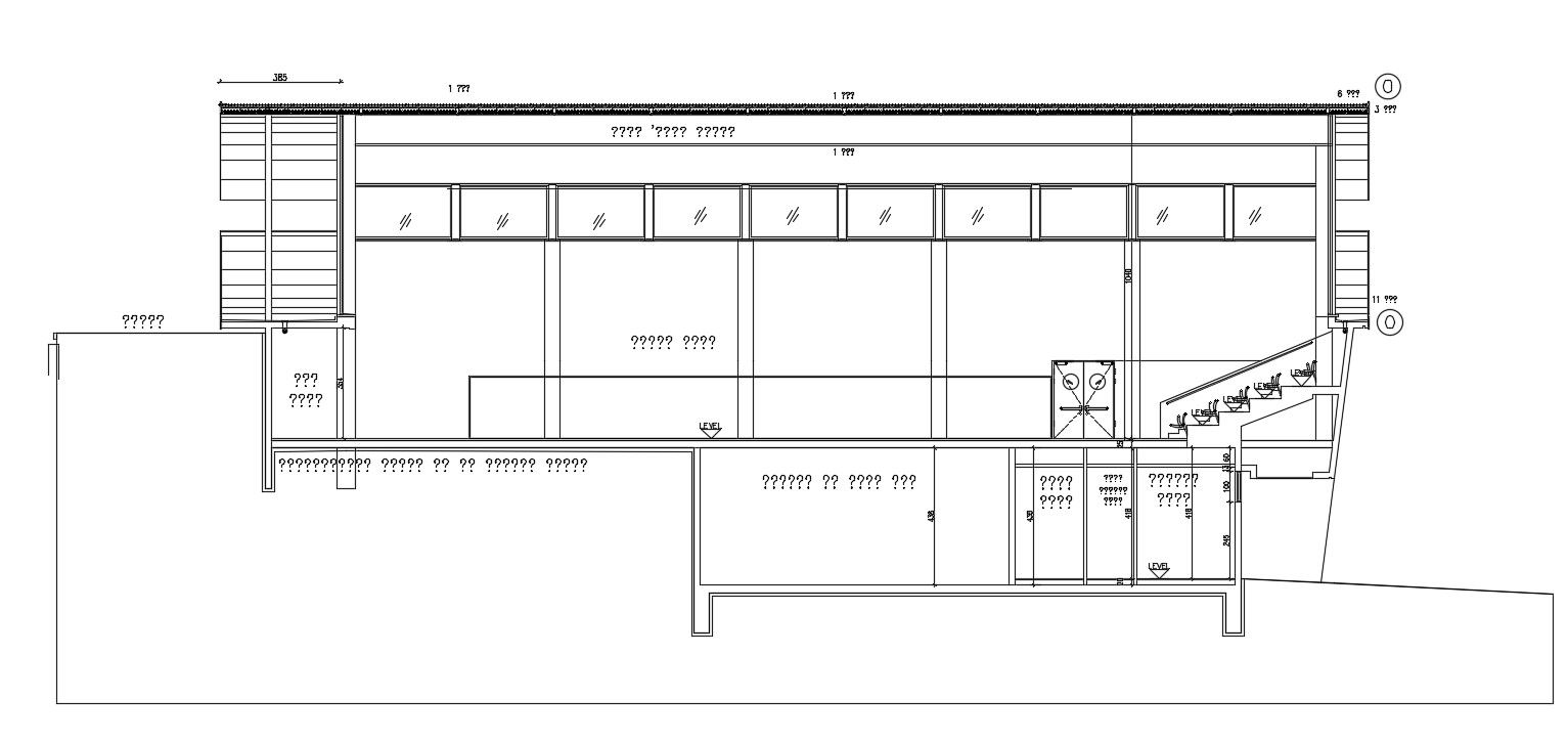
CAD drawing details of sport center building section design that shows entrance door design along with seating arrangement details downloads AutoCAD file.

Uploaded by:
akansha
ghatge

Uploaded by:
ghatge