LOGIN
HOME
CATEGORIES
UPLOAD FILE
PRICING
HOUSE PLAN
ABOUT US
CONTACT US
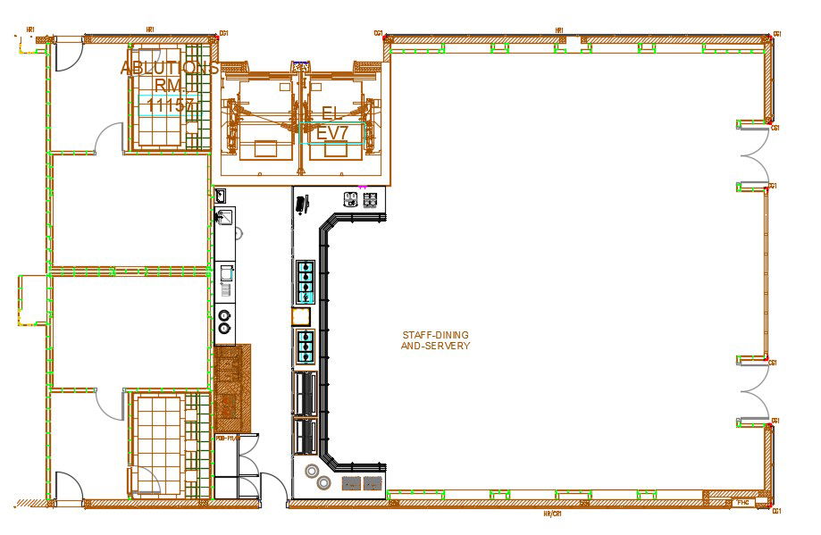
Office Building Staff Dining and Servery Room Design CAD File
Home
Categories
Architecture
Corporate Building
Office Building Staff Dining and Servery Room Design CAD File
Uploaded by:
akansha
ghatge
View Profile
View Profile
Description
CAD layout plan of office building Staff Dining and Servery Room Design Architecture AutoCAD drawing download for free.
File Type:
DWG
File Size:
2.7 MB
Category::
Architecture
Sub Category::
Corporate Building
type:
Free
Uploaded by:
akansha
ghatge
View Profile
Download
Add to libary
find Latest
Related
Files