LOGIN
HOME
CATEGORIES
UPLOAD FILE
PRICING
HOUSE PLAN
ABOUT US
CONTACT US
Bathroom & toilet design
Home
Categories
Architecture
Bathroom & Toilet Drawing
Bathroom & toilet design
Uploaded by:
Jafania
Waxy
View Profile
View Profile
Description
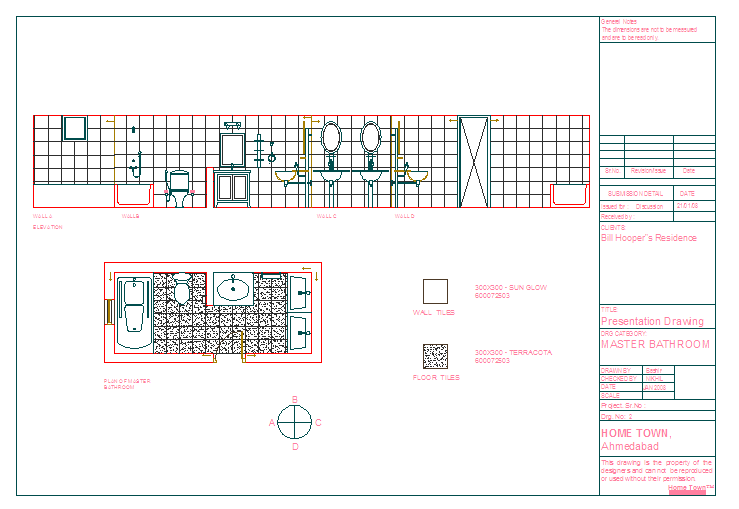
Wall elevation, floor tiles & wall tiles detail, Plan lay-out of master bathroom & toilet detail.
File Type:
DWG
File Size:
221 KB
Category::
Architecture
Sub Category::
Bathroom & Toilet Drawing
type:
Gold
Uploaded by:
Jafania
Waxy
View Profile
Download
Add to libary
find Latest
Related
Files