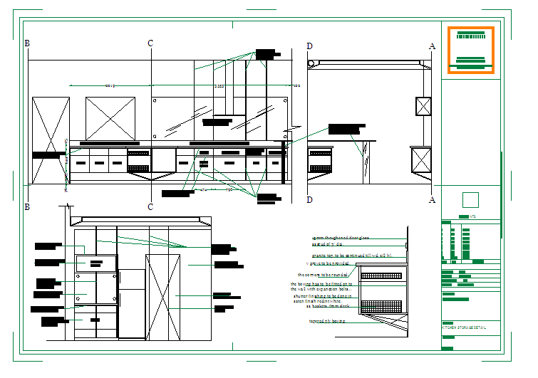
Kitchen Elevation design
Description
All furniture Elevation detail & all interior design include the dimension. 15mm toughened clear glass fixed on studs. the boxing has to be fitted on to the wall with expanction bolts.Kitchen Elevation design.

Uploaded by:
Harriet
Burrows

