2D CAD Drawing Of Stair Section And Toilet Design With Wall Elevation AutoCAD File
Description
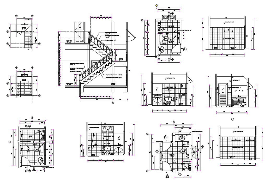
2D CAD Drawing Of Stair Section And Toilet Design With Wall Elevation AutoCAD File; this is the drawing of stair section and plans with all kinds of details and many toilets sanitary layout with four sides internal elevation with tiles and sanitary, working dimension, and some structural details of the stair , its a DWG file format.
Uploaded by:
Rashmi
Solanki

