Download House Site Working Plan with Dimension CAD Drawing

Download House Site Working Plan with Dimension CAD Drawing
Profile

Uploaded by:

Komal

Description
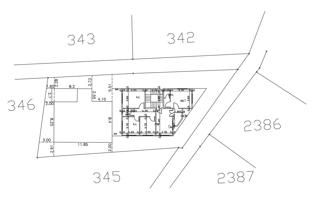
download free DWG file of house site working plan with dimension detail, exiting plot area size, and wide road. this is a simple house final town plan Line drawing.
Profile

Uploaded by:

Komal

find Latest

Related Files