LOGIN
HOME
CATEGORIES
UPLOAD FILE
PRICING
HOUSE PLAN
ABOUT US
CONTACT US
Download Free Apartment Terrace Floor Plan DWG File
Home
Categories
Architecture
Apartment Drawing
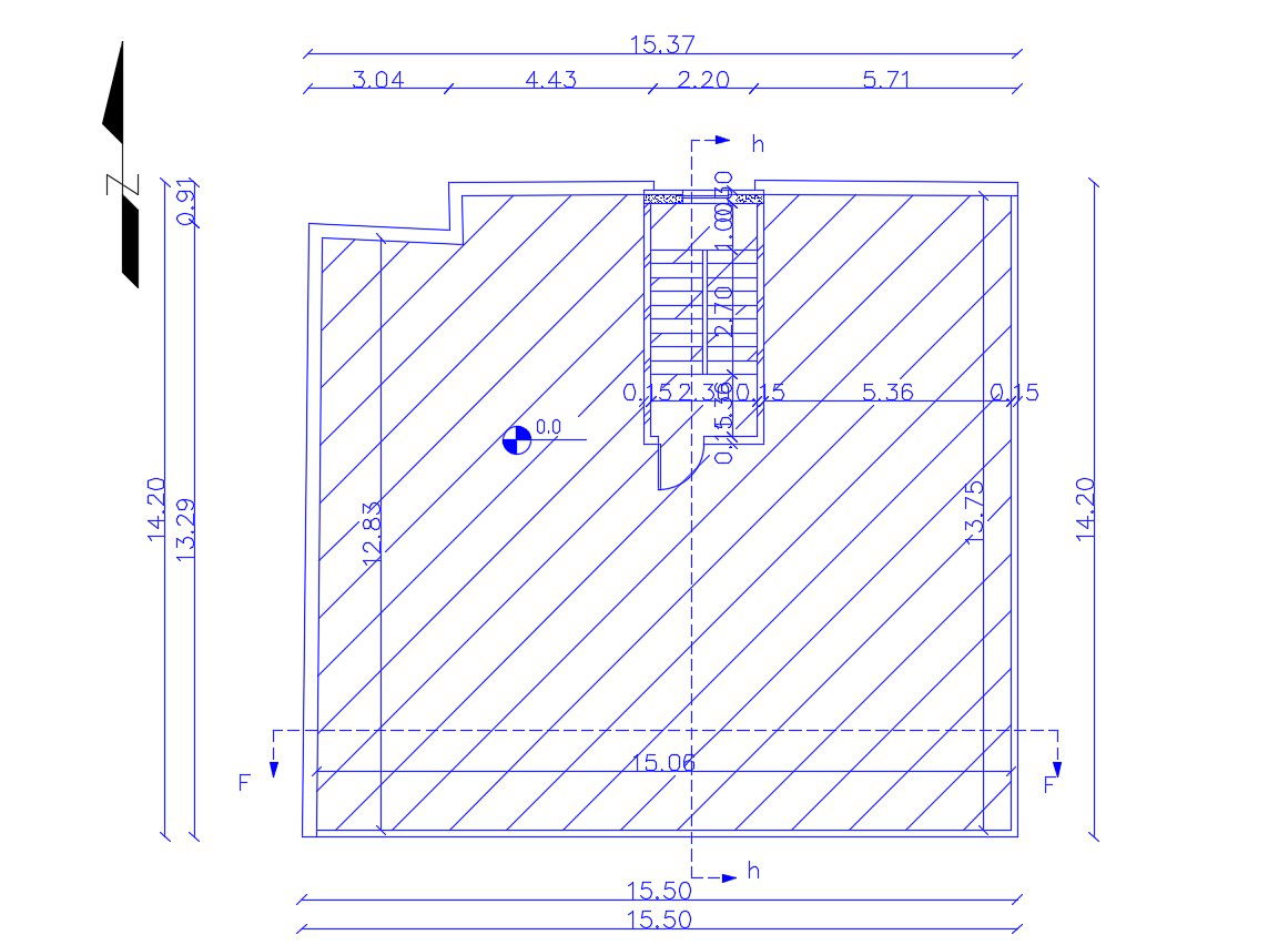
Download Free Apartment Terrace Floor Plan DWG File
Uploaded by:
Komal
View Profile
View Profile
Description
this drawing has been drafted in AutoCAD software, download free DWG file of Apartment Terrace Floor Plan with dimension detail.
File Type:
DWG
File Size:
77 KB
Category::
Architecture
Sub Category::
Apartment Drawing
type:
Free
Uploaded by:
Komal
View Profile
Download
Add to libary
find Latest
Related
Files