Residential Terrace Floor Plan And Stair Cabin Design

Residential Terrace Floor Plan And Stair Cabin Design
Profile

Uploaded by:

Rashmi

Solanki

Description
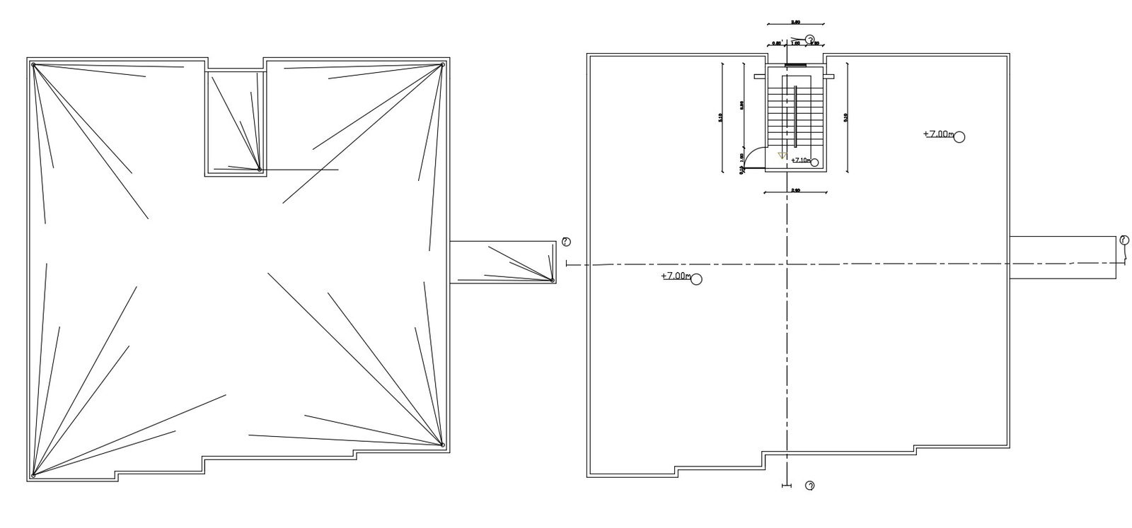
this is the two-floor plan of terrace layout design with rainwater sloping arrow, stair cabin working drawing, floor levels and section line in the plan.
Profile

Uploaded by:

Rashmi

Solanki

find Latest

Related Files

WhatsApp Chat