LOGIN
HOME
CATEGORIES
UPLOAD FILE
PRICING
HOUSE PLAN
ABOUT US
CONTACT US
Residential Project detail
Home
Categories
Architecture
House Plan
Residential Project detail
Uploaded by:
Jafania
Waxy
View Profile
View Profile
Description
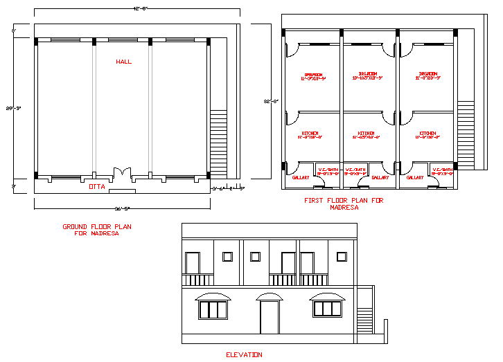
GrounD floor In HAll, Otta, & first floor in bed room, kitchen & with att. bathroom & balcony detail & Elevation design available the drawing.
File Type:
DWG
File Size:
36 KB
Category::
Architecture
Sub Category::
House Plan
type:
Gold
Uploaded by:
Jafania
Waxy
View Profile
Download
Add to libary
find Latest
Related
Files