House Floor Plan With Electrical Layout Drawing

House Floor Plan With Electrical Layout Drawing
Profile

Uploaded by:

Komal

Description
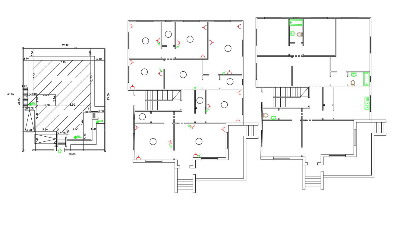
2D CAD drawing of residence house ground floor plan CAD drawing shows sanitary ware detail, electrical layout plan and site plot plan with area survey design DWG file.
Profile

Uploaded by:

Komal

find Latest

Related Files

WhatsApp Chat