Electrical Layout Plan AutoCAD Drawing

Electrical Layout Plan AutoCAD Drawing
Profile

Uploaded by:

Poonam

Description
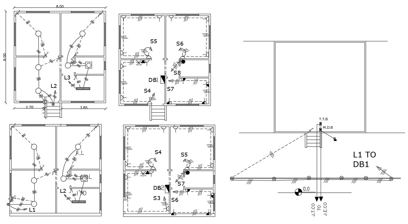
Bungalow of electrical layout plan includes switchboard, fan point, light point, plug point and also more details, free download this drawing and use in a related project.
Profile

Uploaded by:

Poonam

find Latest

Related Files

WhatsApp Chat