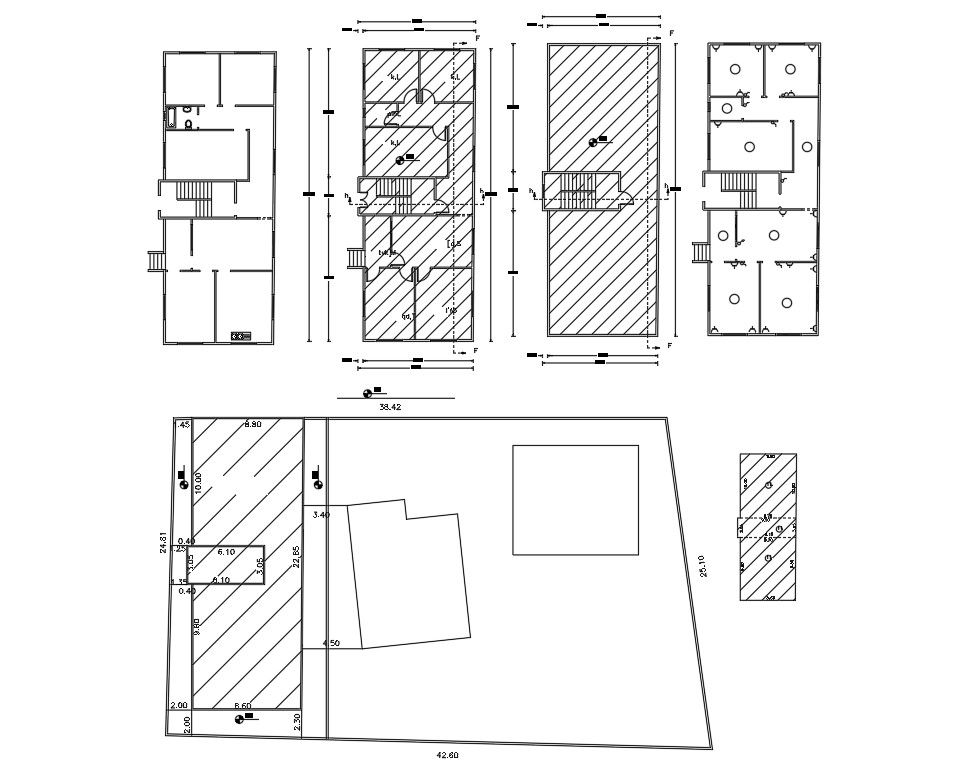
25' X 60' Feet Plot For House Plan
Description
AutoCAD house plan is designed as a 3 Bedroom house single-family residence for a plot size of 25 feet X 60 feet. Site plot plan can easily edit for your new suitable project land area considered in the design. so while using this plan for construction, one should edit plan in meter dimension.
Uploaded by:
