LOGIN
HOME
CATEGORIES
UPLOAD FILE
PRICING
HOUSE PLAN
ABOUT US
CONTACT US
House Floor Plan And Column Footing CAD Drawing
Home
Categories
Architecture
Bungalow House Design
House Floor Plan And Column Footing CAD Drawing
Uploaded by:
Komal
View Profile
View Profile
Description
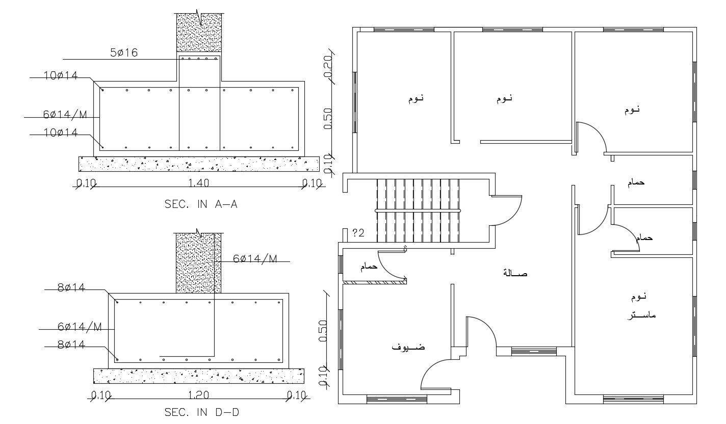
2d CAD drawing of 3 BHK house ground floor plan design and foundation with footing pad detail. download a simple house plan design DWG file.
File Type:
DWG
File Size:
80 KB
Category::
Architecture
Sub Category::
Bungalow House Design
type:
Free
Uploaded by:
Komal
View Profile
Download
Add to libary
find Latest
Related
Files