Housing Light Wall
Description
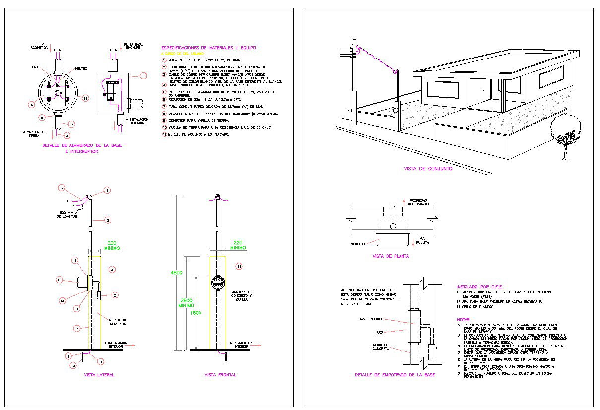
This Electrical lay-out detail in House & perspective detail & street light design include the file.
File Type:
DWG
File Size:
53 KB
Category::
Electrical
Sub Category::
Architecture Electrical Plans
type:
Gold

Uploaded by:
Umar
Mehmood
