30' X 40' House Furniture Plan AutoCAD File
Description
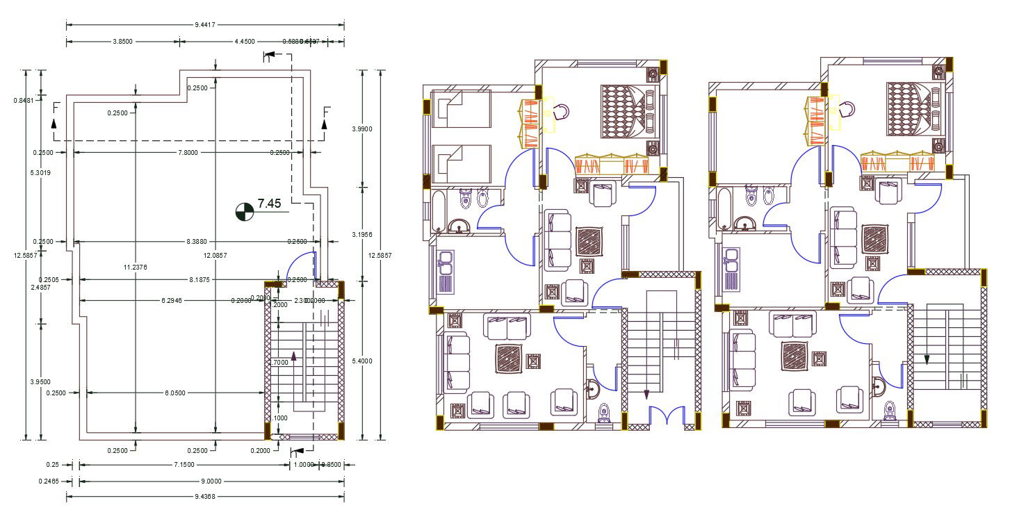
30 X 40 feet lot size for house ground floor and first floor plan with furniture layout plan design with column plan that shows 2 spacious bedrooms, a drawing-room, modular kitchen, living room and toilet near to living area for guest and family. download 1200 square feet house plan design with site plot plan detail DWG file.
Uploaded by:
