LOGIN
HOME
CATEGORIES
UPLOAD FILE
PRICING
HOUSE PLAN
ABOUT US
CONTACT US
Residential Bungalow Plumbing And Electrical CAD File
Home
Categories
Electrical
Light Fixtures & Fittings
Residential Bungalow Plumbing And Electrical CAD File
Uploaded by:
Poonam
View Profile
View Profile
Description
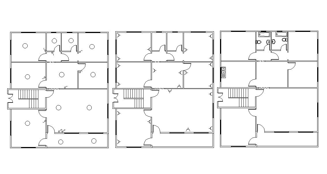
This drawing provide a plumbing layout and electrical layout in a fan point, switchboards, lighting points, etc. download AutoCAD format file.
File Type:
DWG
File Size:
113 KB
Category::
Electrical
Sub Category::
Light Fixtures & Fittings
type:
Gold
Uploaded by:
Poonam
View Profile
Download
Add to libary
find Latest
Related
Files