Autocad DWG file having the sectional details of the RC reinforcement design of the concrete staircase,Download the DWG file.
Description
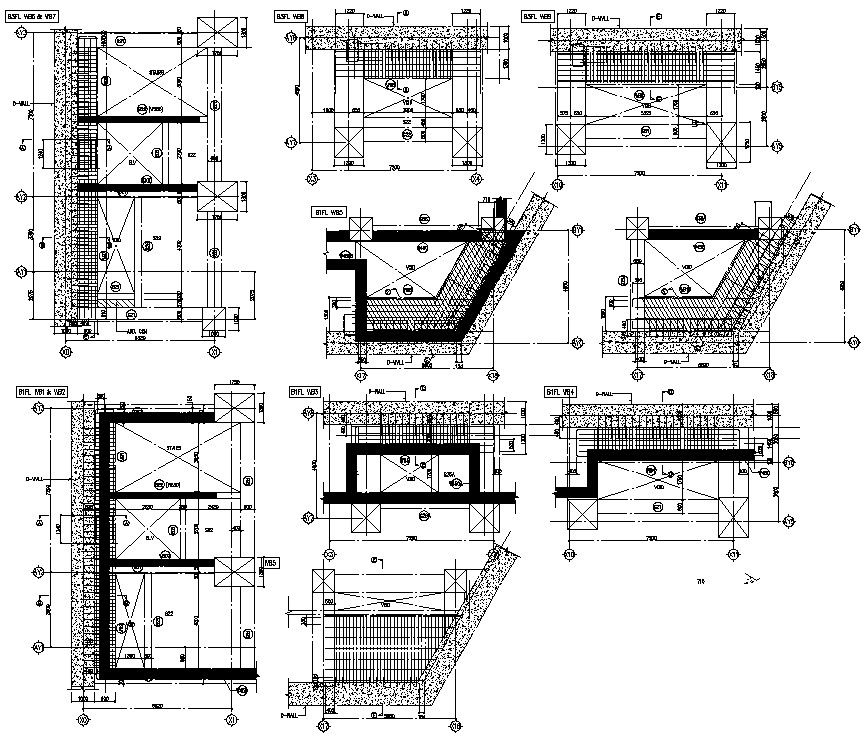
Autocad DWG file having the sectional details of the RC reinforcement design of the concrete staircase, In the sectional plan, the dimensions of the rebar are mentioned. Also, the single-leg stirrup is mentioned. the stirrup reinforcement area is marked.reinforcement steel is attached on the RC wall. Download the Autocad DWG file.
File Type:
DWG
File Size:
395 KB
Category::
Structure
Sub Category::
Section Plan CAD Blocks & DWG Drawing Models
type:
Free

Uploaded by:
AS
SETHUPATHI

